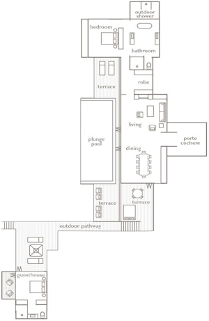
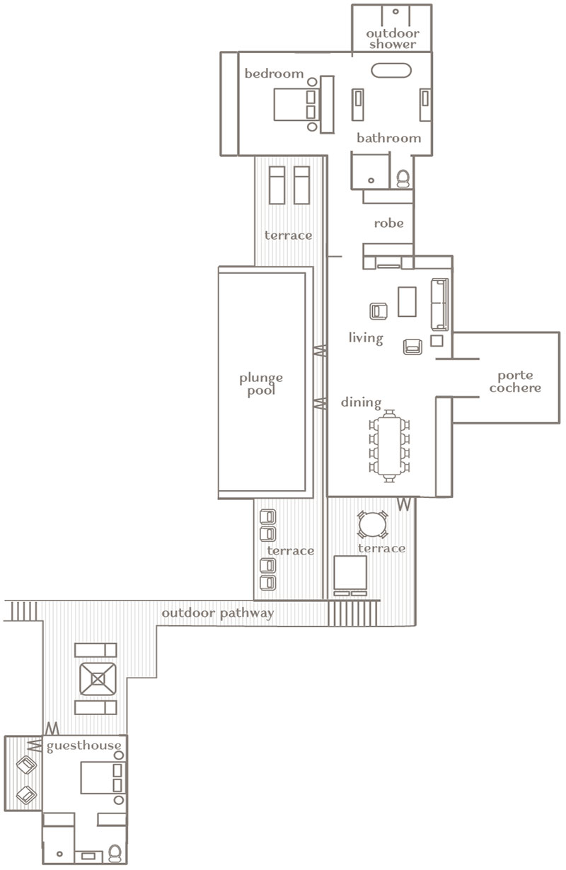
Experience the effortless luxury and total privacy of the exclusive Beach House at qualia. Its space, panoramic views of the Coral Sea and Whitsunday Islands, private lap pool and secluded location make this residence the ultimate hideaway. Generously proportioned and designed in a light and airy open-plan style, the Beach House features a main bedroom and ensuite bathroom, a spacious entertaining area, 10-person dining room, 12-metre infinity edge private pool, and a well-appointed separate guesthouse on the grounds for friends or family. qualia’s Beach House is sublime and the best place to unwind offering the ultimate Hamilton Island escape.
qualia is exclusively for guests ages 16 or over.
Beach House Gallery
Luxury and privacy are the essence of qualia’s unique Beach House
