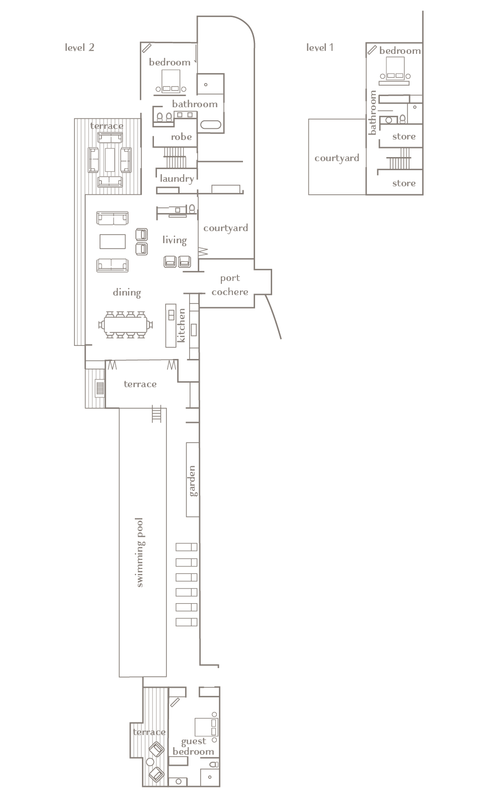
Privately tucked away behind The Residence gates on the western side of qualia, this three-bedroom residence offers the ultimate in Australian luxury accommodation, with sweeping Coral Sea views over Dent Passage and towards Plum Pudding Island. The generous and stylish layout includes a main house with master bedroom on the ground floor and second bedroom on the lower floor, plus a full kitchen, laundry and two outdoor relaxation areas complete with a 25-metre infinity-edge lap pool. There is also a standalone studio room on the grounds, making this the largest property at qualia, perfect for small groups to indulge in the finest of luxury island accommodation.
qualia is exclusively for guests ages 16 or over.
The Residence Gallery
Take in the sweeping views from this exclusive three-bedroom private residence
